Quadrilocale in vendita

Roma, Vicolo Clementi - Portuense
€ 519.000
4 locali 4 locali
132 Mq 132 Mq
2 bagni 2 bagni

Quadrilocale in vendita

Roma, Vicolo Clementi - Portuense

Descrizione annuncio

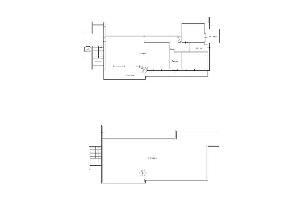
In Vicolo Clementi, all’interno di un elegante e riservato condominio, proponiamo in vendita un immobile unico nel suo genere, capace di coniugare tranquillità, comfort e una posizione strategica a pochi passi da Via Portuense.

Zona giorno ampia, luminosa e studiata nel dettaglio.
L’appartamento, posto all’ultimo piano e completamente ristrutturato, offre una metratura complessiva di 132 mq. L’ingresso introduce in una zona giorno moderno e accogliente, impreziosito da un elegante controsoffitto con faretti che crea un gioco di profondità e luce.
Il salone con angolo cottura è stato concepito per garantire una perfetta vivibilità quotidiana: da un lato la zona pranzo, comoda e ben definita, dall’altro l’area relax con divano, termocamino, e parete attrezzata, pensata per momenti di convivialità. Da questa zona si accede al balcone che percorre l’intero fronte dell’abitazione, uno spazio ideale per pranzi all’aperto o per godersi la tranquillità del contesto circostante.

La terrazza superiore: un valore aggiunto raro e prezioso
Dal balcone, tramite una scala a chiocciola, si raggiunge la terrazza sovrastante, accessibile anche direttamente dal vano scala. Con i suoi 130 mq rappresenta un ambiente di assoluto pregio e una vera estensione della casa. Grazie alla sua ampiezza e alla privacy garantita dal contesto, può essere trasformata in una zona living all’aperto perfetta per tutte le stagioni. È possibile realizzare una chiusura parziale con vetri a scomparsa per creare un’area attrezzata con cucina esterna, ideale per cene estive, oltre a uno spazio barbecue o all’installazione di una vasca jacuzzi, un dettaglio che trasformerebbe questo luogo in una vera oasi di relax esclusivo.

Zona notte funzionale, silenziosa e ben organizzata
Questo ambiente è stato progettato per garantire massimo comfort e privacy. Le due camere matrimoniali offrono spazi ampi e facilmente arredabili, perfette per chi desidera ambienti luminosi e accoglienti. La cameretta, con accesso diretto al balcone privato, rappresenta un ambiente versatile, fruibile come stanza per un figlio, studio privato o area dedicata ad attività lavorative da remoto. I doppi servizi completano la zona notte con soluzioni moderne e confortevoli ideali per l’uso quotidiano.

Comodità e praticità senza rinunciare all’eleganza
A completare la proprietà è presente un box auto situato all’interno dell’autorimessa condominiale, collegato direttamente all’abitazione tramite ascensore, una soluzione comoda e sicura che valorizza ulteriormente l’immobile.

Finiture di qualità e dotazioni moderne
L’immobile presenta accorgimenti e dotazioni che ne elevano il comfort: il duplice impianto di riscaldamento, la caldaia con produzione autonoma di acqua calda, gli infissi in PVC effetto legno con doppio vetro, le inferriate installate su tutti gli ambienti, l’impianto elettrico domotico certificato, il sistema d’allarme misto con filodiffusione e wireless, oltre ai condizionatori caldo/freddo presenti nella stanza matrimoniale e nel salone. Tutti elementi che garantiscono sicurezza, efficienza energetica e un’elevata qualità dell’abitare.

Mostra tutto

Nelle vicinanze

Trasporto pubblico Trasporto pubblico
EUR Magliana
EUR Magliana
3,0 Km
Trasporto pubblico
1,8 Km
Gianicolense/Ravizza
Gianicolense/Ravizza
2,9 Km
Portuense/Vicolo Clementi
Portuense/Vicolo Clementi
120 m
Portuense/Fanella
Portuense/Fanella
180 m
Ricariche auto elettriche Ricariche auto elettriche
Supermercato PIM Newton
1,1 Km
Europa Car Point S.r.l. | EnelX
2,3 Km
Garage Berardo | EnelX
2,5 Km
EnelX EVA+ Distributore IP Matic La Pisana
2,7 Km
Scuole Scuole
Scuola primaria e dell'infanzia "Corviale"
350 m
Scuola secondaria di primo grado "Antonio Gramsci"
560 m
Scuola primaria e dell'infanzia "ARVALIA"
640 m
Scuole
850 m
Scuola Gramsci (succursale)
910 m
Farmacia Farmacia
Farmacia Bianchini
280 m
Farmacia Gina Mucelli
600 m
Farmacia dott. Torelli
890 m
Farmacia Di Leone
1,2 Km
Farmacia Dr. Cianci
1,2 Km
Ospedali Ospedali
European Hospital
560 m
Policlinico Luigi di Liegro
660 m
Villa Sandra
770 m
Ospedale Israelitico
1,7 Km
Ospedale Carlo Forlanini
2,5 Km
Supermercati Supermercati
Conad Superstore
390 m
iN’s mercato
690 m
Il Castoro
750 m
De Carolis alimentari
850 m
Todis
910 m
Negozi Negozi
Il Giardino del Pane
550 m
Negozi
610 m
Mini Market
750 m
Bambi abbigliamento per bambini
900 m
Alimentari Rossi
990 m
Bar Bar
Mario Tornatora
650 m
Bistrot 139
1,4 Km
Novezero
1,4 Km
Bar
1,4 Km
39 Bar
1,6 Km
Ristoranti Ristoranti
Pizzeria rosticceria
780 m
White Bakery
1,4 Km
Ciclostazione Frattini
1,5 Km
Neko
1,6 Km
Panorama 2001
1,6 Km
Mostra tutto

Caratteristiche

Rif.:
61145207
Piano:
3 di 3 con ascensore (Piano alto)
Box:
1
Balconi:
2
Terrazzi:
1
Camere da letto:
3
Mostra tutto
Prezzo Prezzo
€ 519.000
Rata mutuo Rata mutuo
€ 2.447 / mese
Spese annue Spese annue
€ 1.200
Proponi il tuo prezzoProponi il tuo prezzo

Classe Energetica

E
E
E
E
E
E
E
E
E
EP globale non rinnovabile:
174.00 kW h/m² anno
EP globale rinnovabile:
147.00 kW h/m² anno
EP invernale del fabbricato:
EP estiva del fabbricato:
Anno di costruzione:
1982
Riscaldamento:
Autonomo
Tipo impianto:
A radiatori
Tipo alimentazione:
Altro

Ti interessa visionare l'immobile?

Fissa un appuntamento  Fissa un appuntamento

Richiedi informazioni

Clicca su Leggi per aprire l'informativa
* Questi campi sono obbligatori

Calcola il tuo mutuo

Semplice e senza impegno
Anticipo

( % )
Mutuo

( % )

pochi semplici passi

inserisci i tuoi dati
Questionario completato
Grazie per aver richiesto un appuntamento senza impegno con un nostro Consulente del Credito e Assicurativo.

Hai inserito correttamente tutti i dati necessari e a breve riceverai una e-mail con un link da convalidare per inviare i tuoi dati.
Affiliato
Casetta Mattei Mediazioni Srl
Via Della Casetta Mattei, 151/C 00148 Roma (RM)

Il nostro staff


  • Simone Benigni
    Affiliato

  • Flaminia Contu
    Coordinatrice

  • Gianluca Adorante
    Collaboratore

  • Gabriele Muzi
    Collaboratore

  • Chiara Scarizza
    Collaboratrice

  • Lodovico Lombardi
    Affiliato
Via Della Casetta Mattei, 151/C 00148 Roma (RM)
Zona: Portuense-Casetta Mattei
Mostra su mappa
Orari: Lunedì - Venerdì 09:00 - 13:00 / 15:30 - 19:30 Sabato 09:00 - 13:00
Affiliato
Casetta Mattei Mediazioni Srl
Via Della Casetta Mattei, 151/C 00148 Roma (RM)

2026 Tecnocasa Franchising S.p.A. - P. IVA 08365160152 - Via Monte Bianco 60/A 20089 Rozzano (MI). Ogni agenzia ha un proprio titolare ed è autonoma. Privacy policy | Policy utilizzo | Cookie policy