Quadrilocale in vendita

Roma, Via della Casetta Mattei - Casetta Mattei
€ 485.000
4 locali 4 locali
166 Mq 166 Mq
2 bagni 2 bagni

Quadrilocale in vendita

Roma, Via della Casetta Mattei - Casetta Mattei

Descrizione annuncio

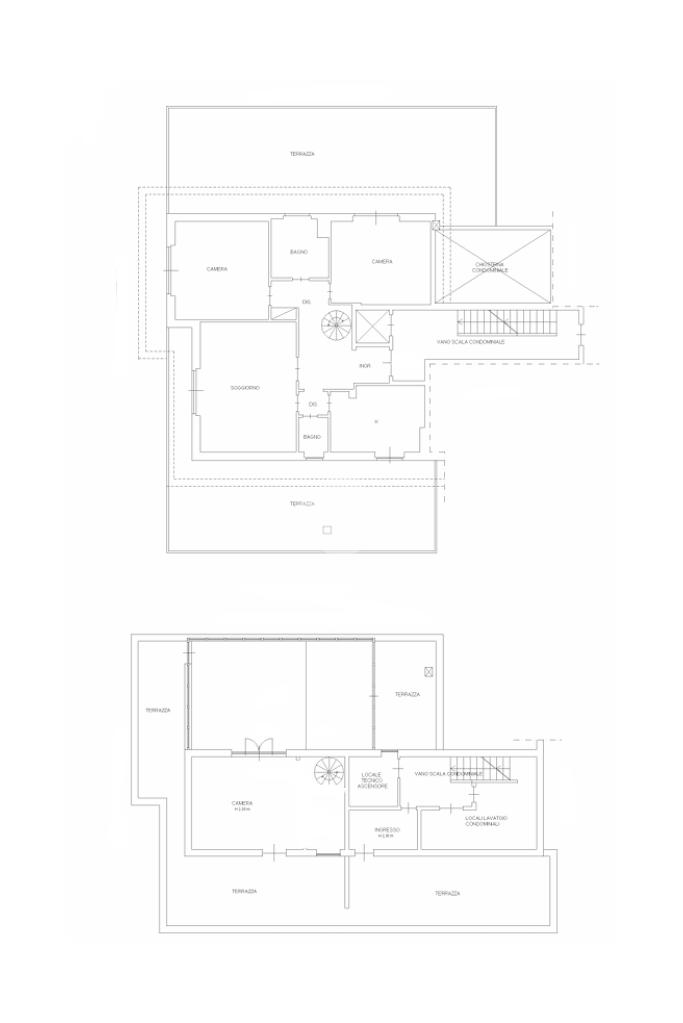
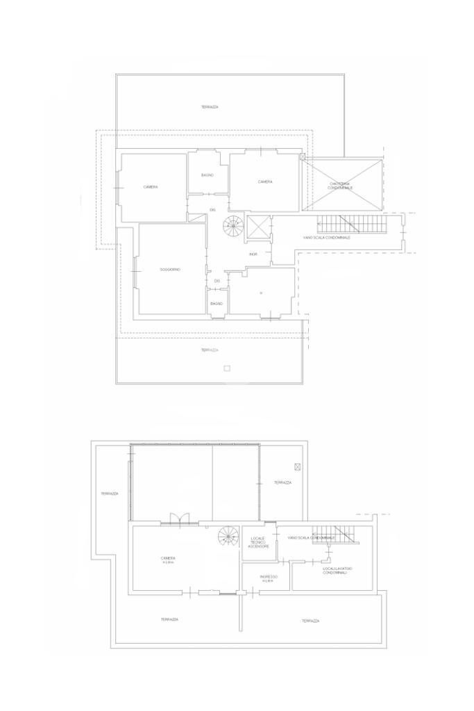
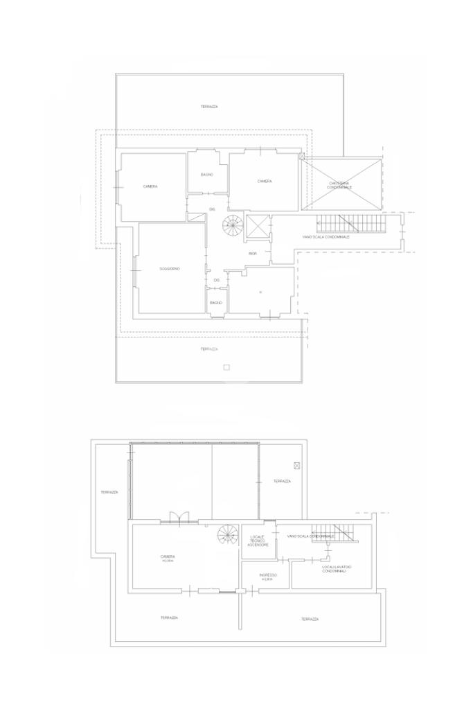
ATTICO E SUPER ATTICO CON VISTA PANORAMICA E BOX AUTO DI PERTINENZA

In Via della Casetta Mattei, a pochi passi dalla zona Bravetta, proponiamo in vendita un esclusivo attico e super attico situato in un contesto signorile e ricercato, caratterizzato da tranquillità, comodità e immediata vicinanza ai principali servizi del quartiere. La posizione è particolarmente strategica: sotto casa sono presenti le fermate degli autobus con collegamenti diretti verso il Centro, Monteverde ed EUR, rendendo ogni spostamento pratico e veloce.

L’abitazione si sviluppa al quarto e quinto piano e si distingue per un’ottima distribuzione degli ambienti e per la presenza di ampi spazi esterni, pensati per valorizzare al massimo la vivibilità quotidiana. Il piano principale, posto al quarto livello, accoglie gli ospiti con un ingresso che introduce nella luminosa zona giorno, un ambiente elegante composto da un salone di rappresentanza reso arioso dalle aperture verso l’esterno e ideale per chi ama ricevere o vivere quotidianamente spazi ampi e confortevoli. Su questo stesso livello troviamo un bagno di servizio, funzionale e ben posizionato, e una comoda cucina abitabile con accesso diretto al primo terrazzo, caratterizzato da una doppia esposizione angolare che conferisce luce naturale durante tutto l’arco della giornata.

Il disimpegno notte, ben separato dalla zona giorno, conduce alla parte più privata dell’abitazione. Qui sono presenti un secondo bagno, una prima camera da letto matrimoniale e una seconda camera matrimoniale di dimensioni generose, quest’ultima dotata di accesso diretto a un ampio terrazzo, perfetto per momenti di relax all’aperto.

Il livello superiore, collegato internamente tramite una scala elegante ma raggiungibile anche dal vano scale condominiale, rappresenta una vera e propria estensione della casa principale. Qui troviamo una terza camera da letto, versatile e riservata, e una splendida veranda attrezzata con area relax e una cucina in muratura che conferisce calore e funzionalità all’ambiente. Le ampie superfici vetrate permettono di godere di una vista panoramica suggestiva, che si estende verso il verde circostante e i punti più alti della città. A completare questo piano vi sono due ulteriori terrazzi a livello, ideali per pranzi, cene o semplicemente per godersi un momento all’aria aperta in totale privacy.

Questa soluzione rappresenta un’opportunità unica per chi ricerca un’abitazione di prestigio, caratterizzata da ambienti luminosi, grandi spazi esterni e una posizione privilegiata, perfettamente collegata e immersa in un contesto residenziale di alto livello. Perfetta per famiglie, professionisti o chiunque desideri vivere in un immobile esclusivo senza rinunciare alla comodità dei servizi.

Mostra tutto

Nelle vicinanze

Trasporto pubblico Trasporto pubblico
Casaletto
Casaletto
2,0 Km
Gianicolense/Colli Portuensi
Gianicolense/Colli Portuensi
2,1 Km
Casetta Mattei/Conte
Casetta Mattei/Conte
10 m
Forte Bravetta
Forte Bravetta
210 m
Ricariche auto elettriche Ricariche auto elettriche
EnelX EVA+ Distributore IP Matic La Pisana
1,1 Km
Supermercato PIM Newton
1,6 Km
Crowne Plaza Rome-St. Peter's
2,7 Km
Scuole Scuole
Istituto Comprensivo "Fratelli Cervi"
490 m
I.C. F.lli Cervi
500 m
Istituto Comprensivo "Fratelli Cervi" - Plesso Martini
560 m
Liceo Classico Eugenio Montale
830 m
Scuole
990 m
Farmacia Farmacia
Parafarmacia Conad
1,4 Km
Farmacia Bianchini
1,7 Km
Farmacia
1,7 Km
Farmacia Dei Colli
1,8 Km
Farmacia Gina Mucelli
1,9 Km
Ospedali Ospedali
Policlinico Luigi di Liegro
1,2 Km
San Raffaele Pisana
1,6 Km
Villa Sandra
1,6 Km
European Hospital
1,7 Km
Ospedale Carlo Forlanini
2,5 Km
Supermercati Supermercati
Supermercati
150 m
Supermercato PIM
1,2 Km
Penny
1,3 Km
Conad
1,4 Km
Il Castoro
1,4 Km
Negozi Negozi
Negozi
1,5 Km
Il Giardino del Pane
1,6 Km
Trevisiol
2,1 Km
Pasta All'Uovo
2,2 Km
Forno Marchetti
2,3 Km
Bar Bar
Mario Tornatora
1,6 Km
Maurizio
2,2 Km
Bar
2,2 Km
Miani
2,2 Km
Bistrot 139
2,6 Km
Ristoranti Ristoranti
CasAlice
1,1 Km
Schiavi d'Abruzzo
1,4 Km
Pizzeria
1,5 Km
Hong Fan Tian
1,6 Km
I Gerani da Peppe
1,7 Km
Mostra tutto

Caratteristiche

Rif.:
61152024
Piano:
4 di 5 con ascensore (Piano su più livelli)
Box:
1
Balconi:
1
Terrazzi:
2
Camere da letto:
3
Mostra tutto
Prezzo Prezzo
€ 485.000
Rata mutuo Rata mutuo
€ 2.286 / mese
Spese annue Spese annue
€ 2.000
Proponi il tuo prezzoProponi il tuo prezzo

Classe Energetica

F
F
F
F
F
F
F
F
F
EP globale non rinnovabile:
175.00 kW h/m² anno
EP globale rinnovabile:
134.00 kW h/m² anno
EP invernale del fabbricato:
EP estiva del fabbricato:
Anno di costruzione:
1973
Riscaldamento:
Autonomo
Tipo impianto:
A radiatori
Tipo alimentazione:
Metano

Ti interessa visionare l'immobile?

Fissa un appuntamento  Fissa un appuntamento

Richiedi informazioni

Clicca su Leggi per aprire l'informativa
* Questi campi sono obbligatori

Calcola il tuo mutuo

Semplice e senza impegno
Anticipo

( % )
Mutuo

( % )

pochi semplici passi

inserisci i tuoi dati
Questionario completato
Grazie per aver richiesto un appuntamento senza impegno con un nostro Consulente del Credito e Assicurativo.

Hai inserito correttamente tutti i dati necessari e a breve riceverai una e-mail con un link da convalidare per inviare i tuoi dati.
Affiliato
Casetta Mattei Mediazioni Srl
Via Della Casetta Mattei, 151/C 00148 Roma (RM)

Il nostro staff


  • Simone Benigni
    Affiliato

  • Flaminia Contu
    Coordinatrice

  • Gianluca Adorante
    Collaboratore

  • Gabriele Muzi
    Collaboratore

  • Chiara Scarizza
    Collaboratrice

  • Lodovico Lombardi
    Affiliato
Via Della Casetta Mattei, 151/C 00148 Roma (RM)
Zona: Portuense-Casetta Mattei
Mostra su mappa
Orari: Lunedì - Venerdì 09:00 - 13:00 / 15:30 - 19:30 Sabato 09:00 - 13:00
Affiliato
Casetta Mattei Mediazioni Srl
Via Della Casetta Mattei, 151/C 00148 Roma (RM)

2026 Tecnocasa Franchising S.p.A. - P. IVA 08365160152 - Via Monte Bianco 60/A 20089 Rozzano (MI). Ogni agenzia ha un proprio titolare ed è autonoma. Privacy policy | Policy utilizzo | Cookie policy