Trilocale in vendita

Roma, Via Poggio Verde - Casetta Mattei
€ 275.000
3 locali 3 locali
80 Mq 80 Mq
1 bagno 1 bagno

Trilocale in vendita

Roma, Via Poggio Verde - Casetta Mattei

Descrizione annuncio

ELEGANTE SOLUZIONE BILIVELLO IN CONTESTO TRANQUILLO E SIGNORILE

All’interno di un moderno complesso residenziale edificato nel 2015, proponiamo una soluzione abitativa di rara qualità, pensata per chi desidera vivere in un contesto recente, curato e completo di ogni comfort. Il condominio si distingue per l’architettura contemporanea, per le sue aree comuni ben tenute e per la presenza di servizi che rendono la vita quotidiana pratica e piacevole. L’ambiente è riservato, ordinato e ideale per chi cerca tranquillità senza rinunciare alla comodità dei collegamenti e alla vicinanza ai principali servizi della zona.

IL COMPLESSO RESIDENZIALE
Il condominio si presenta con linee moderne, materiali attuali e una gestione efficiente degli spazi. È servito da ascensore e dispone di un’autorimessa collegata internamente, oltre a zone verdi curate che circondano gli edifici, contribuendo a creare un’atmosfera gradevole e silenziosa. L’accesso è regolato e ben organizzato, il che garantisce privacy e sicurezza ai residenti, rendendo il complesso uno dei più apprezzati della zona.

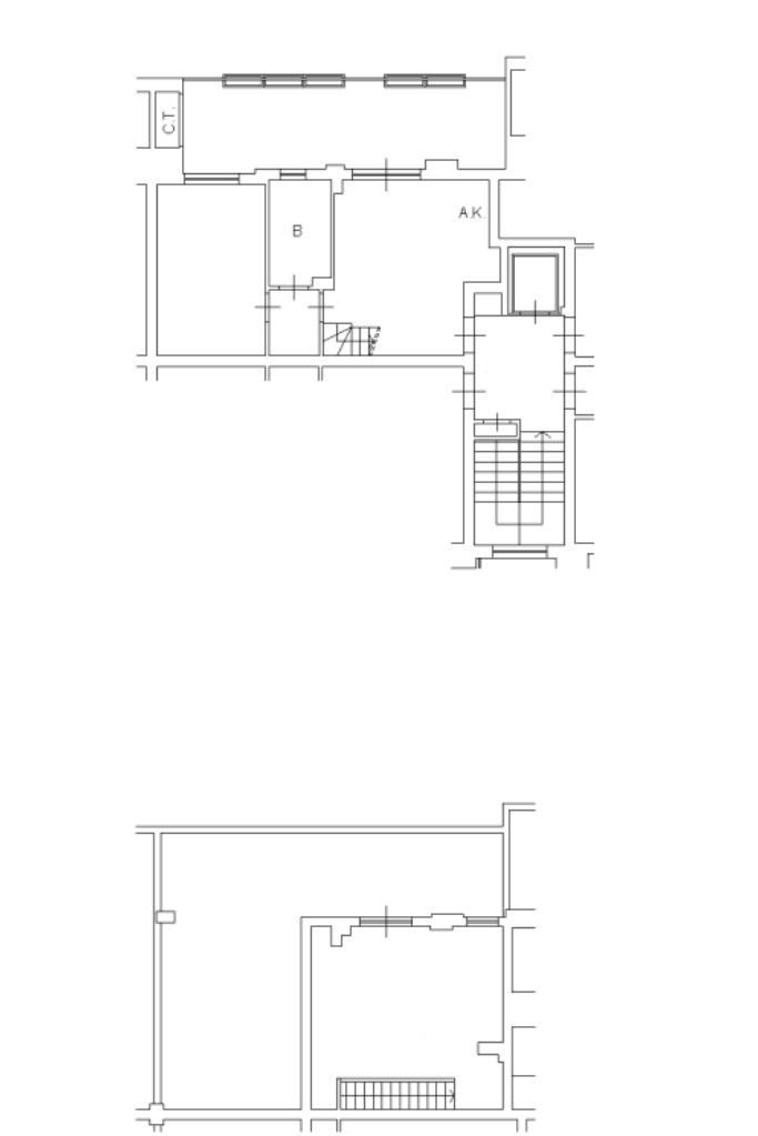
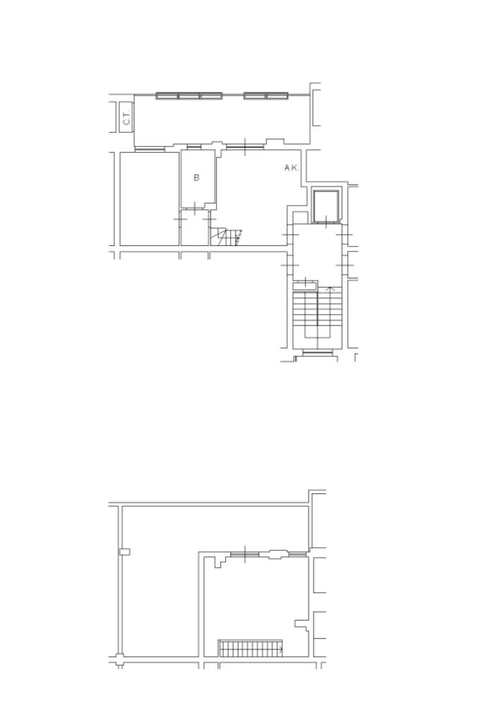
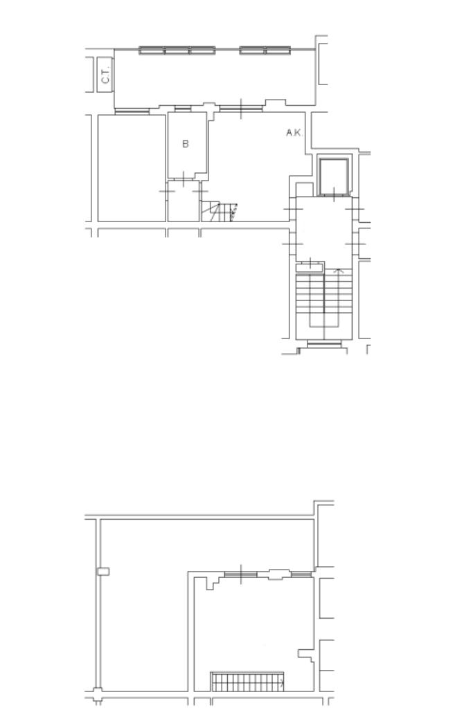
IL PIANO PRINCIPALE E LA ZONA GIORNO
L’immobile si sviluppa su due livelli, posti al terzo e quarto piano, collegati tra loro da una comoda scala in legno dal design caldo ed elegante. L’ingresso si apre direttamente sulla zona living, un ambiente luminoso e ben articolato che ospita il soggiorno e l’angolo cottura. Gli spazi risultano accoglienti, facili da personalizzare e ideali tanto per la quotidianità quanto per momenti di convivialità.

Da qui si accede al primo spazio esterno, un balcone abitabile con affaccio tranquillo sul giardino condominiale interno. Questo ambiente è stato ulteriormente valorizzato grazie alla recente installazione di vetri a scomparsa, una soluzione che consente di ampliare la fruibilità del terrazzo durante tutto l’anno. La possibilità di chiudere completamente lo spazio mantiene un ottimo livello di luminosità e offre un proseguimento naturale della zona giorno.
Proseguendo attraverso il disimpegno si raggiunge una prima camera, comoda e versatile, che può essere utilizzata come stanza per i figli, studio privato per lo smart working o ambiente jolly da destinare alle proprie esigenze. Sullo stesso piano si trova il bagno principale, caratterizzato da materiali moderni e completo di ogni comfort.

IL PIANO SUPERIORE E LA SUITE MATRIMONIALE
Salendo la scala interna si raggiunge il livello superiore, dedicato alla camera matrimoniale principale. Si tratta di un ambiente che offre una sensazione di comfort con la presenza della cabina armadio che rende la stanza particolarmente funzionale.
All’interno della camera da letto è inoltre presente la predisposizione per la realizzazione di un secondo bagno sempre finestrato.
Da questo livello si accede anche al secondo terrazzo, un ambiente esterno di generosa metratura, ideale per creare una zona relax privata, per godere della tranquillità del contesto o per vivere momenti all’aperto nelle belle giornate.

PERTINENZE E COMODITA'
Completano la proprietà una cantina e un posto auto situato nell’autorimessa condominiale, raggiungibile direttamente tramite ascensore.

Mostra tutto

Nelle vicinanze

Trasporto pubblico Trasporto pubblico
Trasporto pubblico
2,7 Km
Poggio Verde/Mazzacurati
Poggio Verde/Mazzacurati
30 m
Mazzacurati/Lavezzari
Mazzacurati/Lavezzari
150 m
Magliana
Magliana
2,7 Km
Ricariche auto elettriche Ricariche auto elettriche
EnelX EVA+ Distributore IP Matic La Pisana
1,7 Km
Supermercato PIM Newton
2,0 Km
Scuole Scuole
Istituto Comprensivo "Fratelli Cervi" - Plesso Martini
580 m
I.C. F.lli Cervi
630 m
Istituto Comprensivo "Fratelli Cervi"
660 m
Istituto Istruzione Superiore “Via dei Papareschi”
1,0 Km
Scuola primaria e dell'infanzia "Corviale"
1,1 Km
Farmacia Farmacia
Parafarmacia Conad
320 m
Farmacia Bianchini
1,5 Km
Farmacia Di Leone
1,6 Km
Farmacia Gina Mucelli
1,8 Km
Farmacia
2,0 Km
Ospedali Ospedali
Policlinico Luigi di Liegro
660 m
Villa Sandra
740 m
European Hospital
1,7 Km
San Raffaele Pisana
2,5 Km
Ospedale Israelitico
2,5 Km
Supermercati Supermercati
Penny
130 m
Conad
330 m
Il Castoro
620 m
iN’s mercato
770 m
Supermercati
1,3 Km
Negozi Negozi
Negozi
360 m
Il Giardino del Pane
860 m
Mini Market
2,0 Km
Bambi abbigliamento per bambini
2,2 Km
Alimentari Rossi
2,2 Km
Bar Bar
Mario Tornatora
780 m
Novezero
1,9 Km
39 Bar
2,5 Km
Bar
2,5 Km
Bistrot 139
2,6 Km
Ristoranti Ristoranti
Panorama 2001
1,1 Km
Locanda dei Massimi
1,6 Km
CasAlice
1,8 Km
La Taverna del Bracho
1,8 Km
Pizzeria rosticceria
2,0 Km
Mostra tutto

Caratteristiche

Rif.:
61152616
Piano:
3 di 4 con ascensore (Piano su più livelli)
Posti auto:
1
Balconi:
1
Terrazzi:
1
Camere da letto:
2
Mostra tutto
Prezzo Prezzo
€ 275.000
Rata mutuo Rata mutuo
€ 1.296 / mese
Spese annue Spese annue
€ 2.000
Proponi il tuo prezzoProponi il tuo prezzo

Classe Energetica

E
E
E
E
E
E
E
E
E
EP globale non rinnovabile:
175.00 kW h/m² anno
EP globale rinnovabile:
175.00 kW h/m² anno
EP invernale del fabbricato:
EP estiva del fabbricato:
Anno di costruzione:
2015
Riscaldamento:
Centralizzato
Tipo impianto:
A radiatori
Tipo alimentazione:
Metano

Ti interessa visionare l'immobile?

Fissa un appuntamento  Fissa un appuntamento

Richiedi informazioni

Clicca su Leggi per aprire l'informativa
* Questi campi sono obbligatori

Calcola il tuo mutuo

Semplice e senza impegno
Anticipo

( % )
Mutuo

( % )

pochi semplici passi

inserisci i tuoi dati
Questionario completato
Grazie per aver richiesto un appuntamento senza impegno con un nostro Consulente del Credito e Assicurativo.

Hai inserito correttamente tutti i dati necessari e a breve riceverai una e-mail con un link da convalidare per inviare i tuoi dati.
Affiliato
Casetta Mattei Mediazioni Srl
Via Della Casetta Mattei, 151/C 00148 Roma (RM)

Il nostro staff


  • Simone Benigni
    Affiliato

  • Flaminia Contu
    Coordinatrice

  • Gianluca Adorante
    Collaboratore

  • Gabriele Muzi
    Collaboratore

  • Chiara Scarizza
    Collaboratrice

  • Lodovico Lombardi
    Affiliato
Via Della Casetta Mattei, 151/C 00148 Roma (RM)
Zona: Portuense-Casetta Mattei
Mostra su mappa
Orari: Lunedì - Venerdì 09:00 - 13:00 / 15:30 - 19:30 Sabato 09:00 - 13:00
Affiliato
Casetta Mattei Mediazioni Srl
Via Della Casetta Mattei, 151/C 00148 Roma (RM)

2026 Tecnocasa Franchising S.p.A. - P. IVA 08365160152 - Via Monte Bianco 60/A 20089 Rozzano (MI). Ogni agenzia ha un proprio titolare ed è autonoma. Privacy policy | Policy utilizzo | Cookie policy